Date : 2024
Lieu : Levie
Maître d’ouvrage : Collectivité de Corse
Co-traitant : Betem
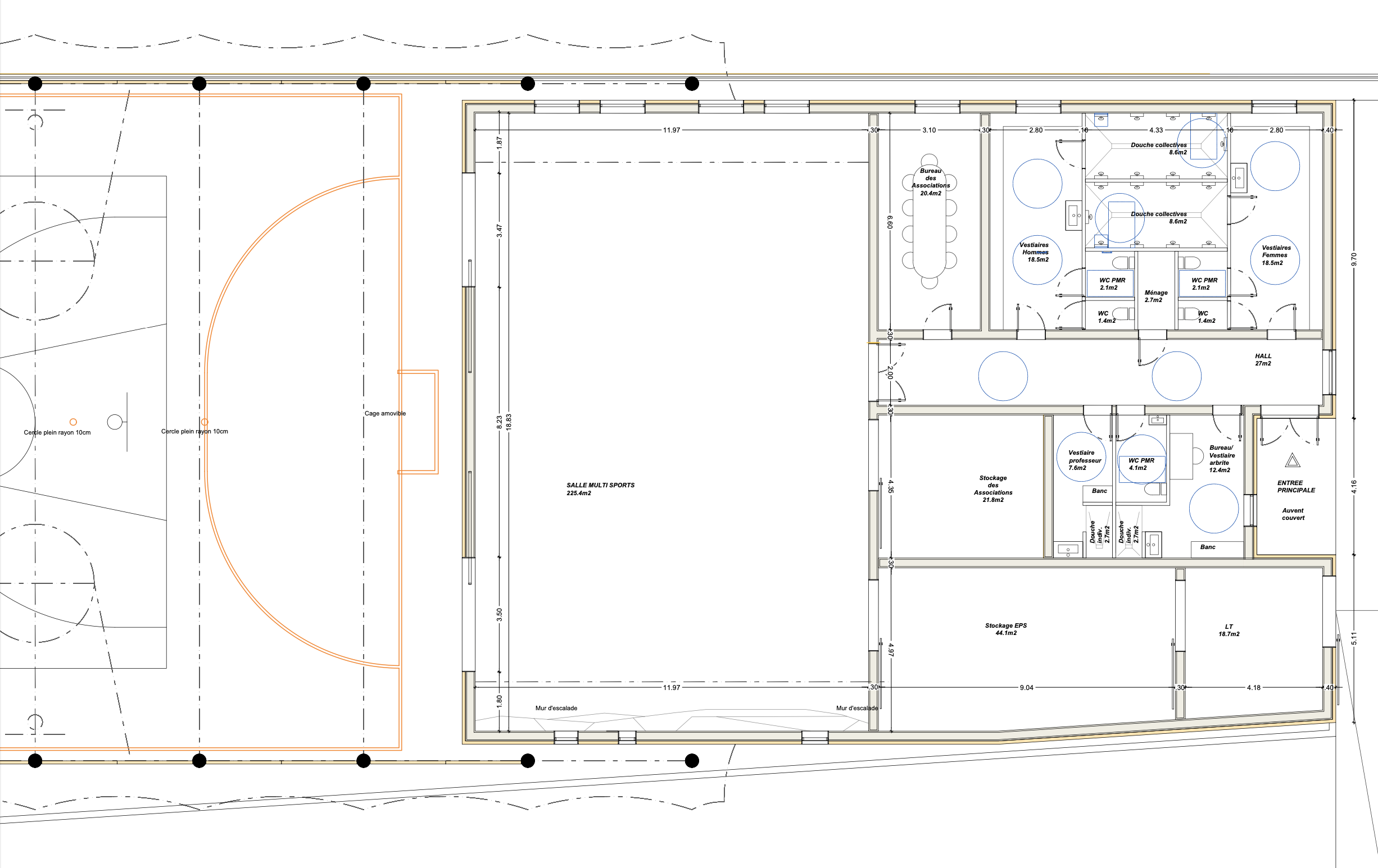
Nature de l’opération : Création d’une salle de sport au collège de Livia
Surface : 888m2
Mission : Complète
Stade : Opération en cours
Montant des travaux : NC